About
design
work
Contact
Location.
경기도 고양시 일산동구 무궁화로 37, 302호
070.7585.1008
space
object
direction
커피볶는시골커피-문경점
페이지 정보
작성자
최고관리자
조회수
63회
등록일
25-09-26 09:27
답변
본문
목록
첨부파일
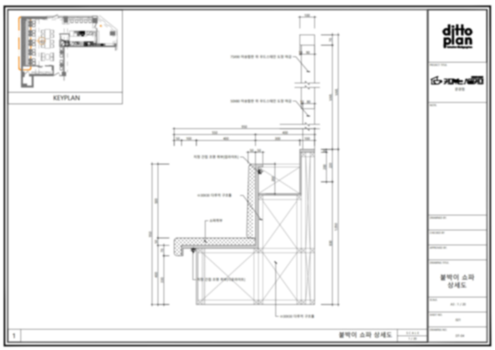
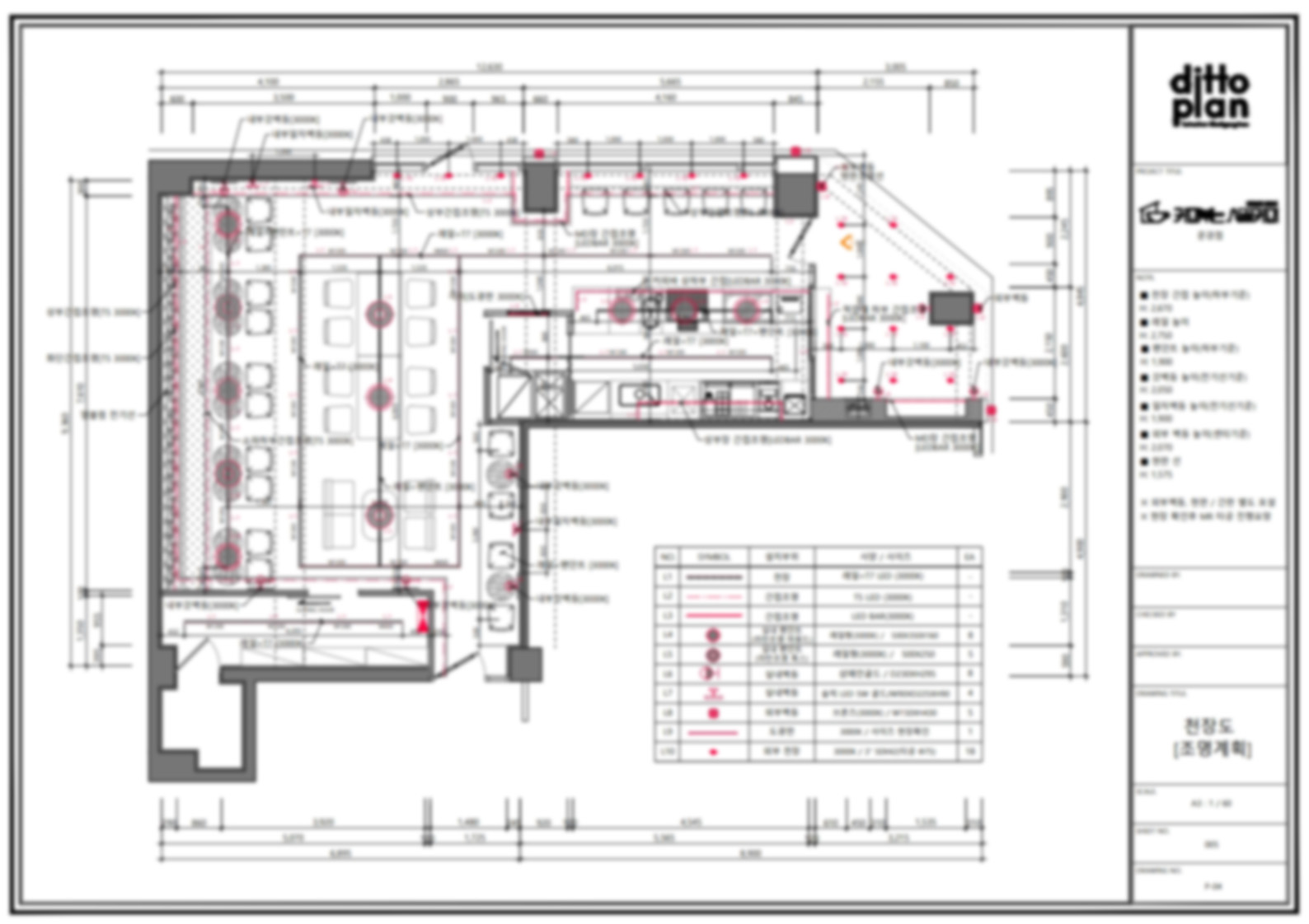
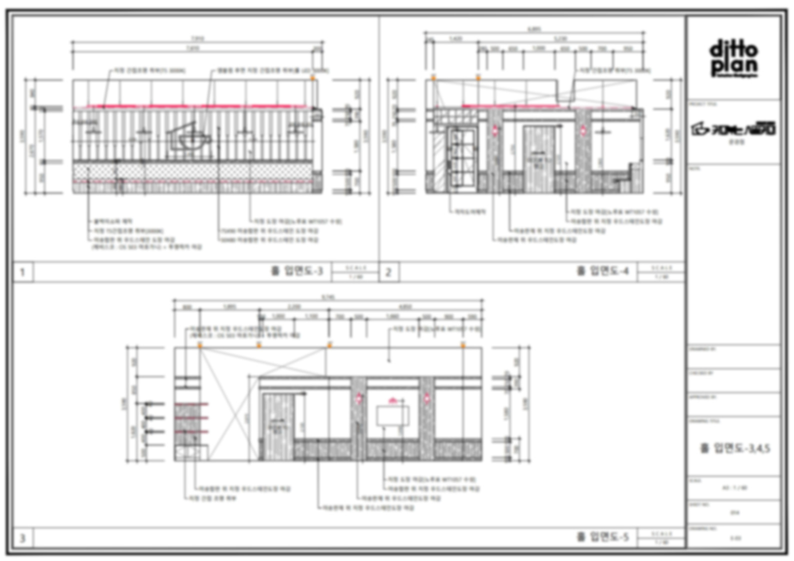
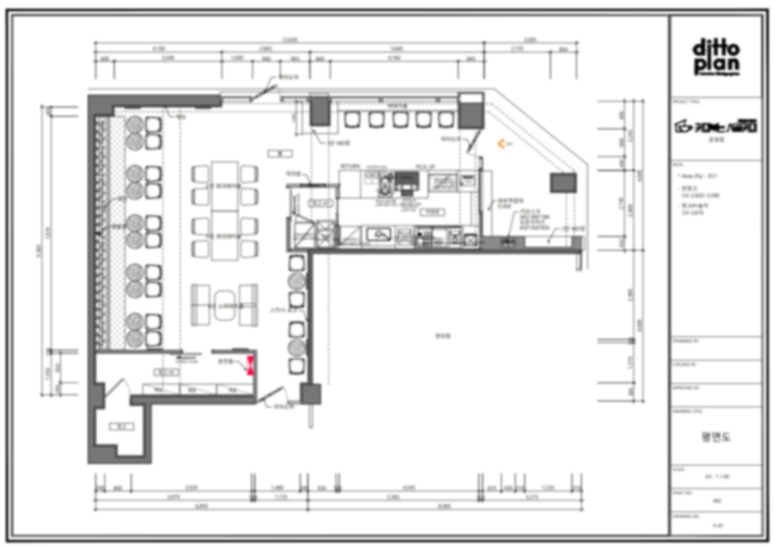
커피볶는시골커피-문경점
AREA :
DESIGN : (주)디토플랜
CONSTRUCTION : 프렌차이즈 카페
견적문의